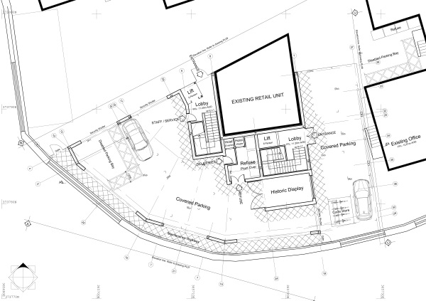
This prominent site overlooking the confluence of the River Weaver and the River Dane presents a fantastic development opportunity.
All sites come with specific challenges and this is no different being within the curtilage of locally listed buildings and tight up against recently constructed flood defence walls.
The site is also situated within a Conservation Area and within close proximity to a historic town centre. The proposals have been very carefully developed in order to present a high quality piece of modern architecture within a historic and visually prominent setting.
An application for planning permission has recently been submitted and so we hope to be progressing this project through the studio and on to site in the very near future.












